821 Salem Ave SW , Roanoke, VA 24016
821 Salem Ave SW , Roanoke, VA 24016
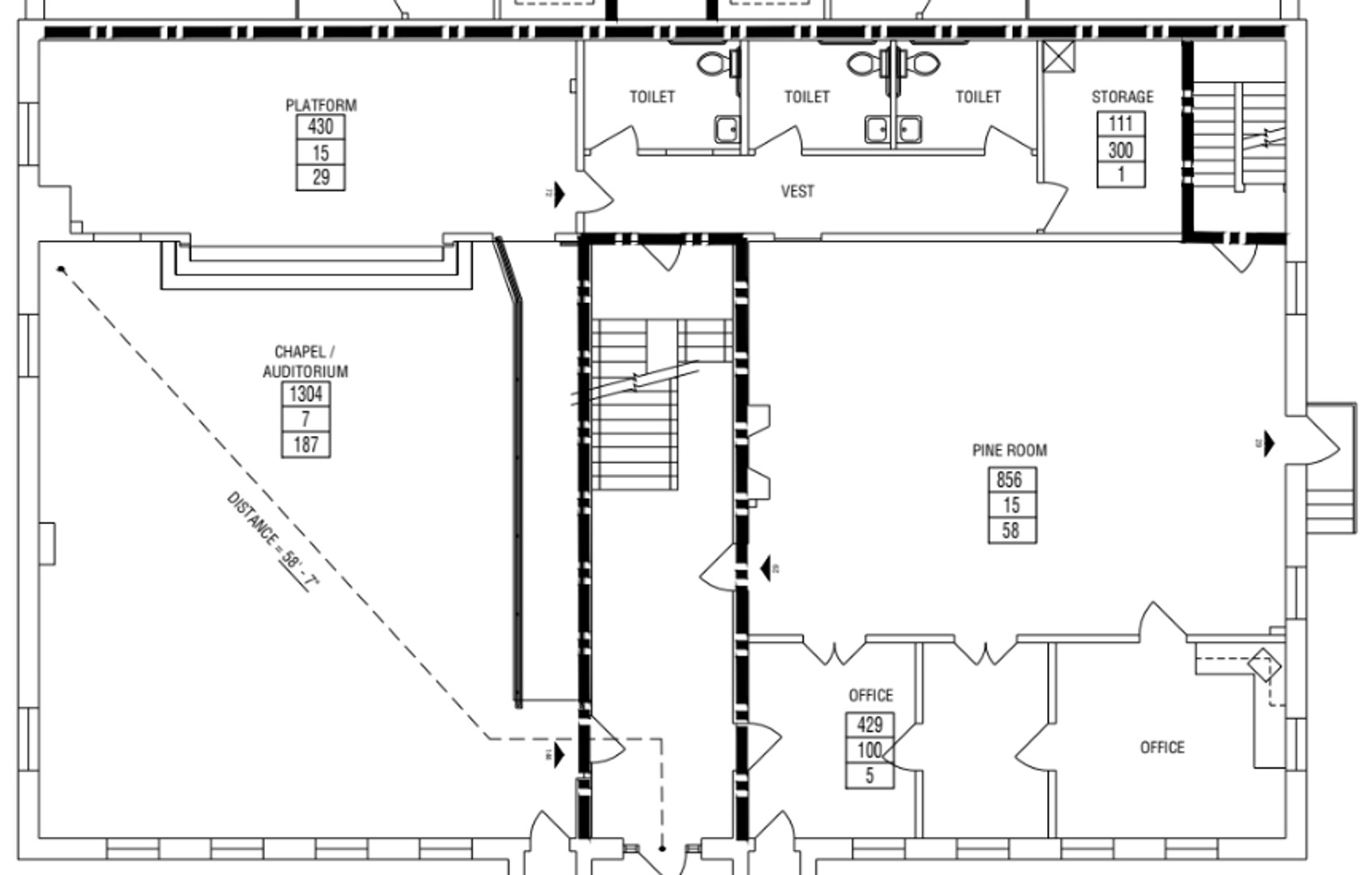
Suites 101 & 102 - Auditorium & Pine Room
The Citadel Auditorium & Pine Room commercial suites offer large open spaces with hardwood floors & natural light. There are private offices, restrooms, a stage, kitchen & more for your business concept. Conveniently located to downtown, this building features a private parking lot as well as additional street parking. The Auditorium features a large stage, perfect for events or a class setting. The pine room, adjacent to the Auditorium, has unique features including a stone fireplace and wood paneling with 3 offices & a kitchen. Due to zoning restrictions, alcohol is not permitted to be sold in either space --- however, the possibility of a cafe or other hospitality related concept would gladly be entertained. These spaces could also be great for a church/fellowing hall, co-lab/shared office, health and holistic haven, artist studios and more. The suites are available to be rented together at a discounted rate or separately. Please inquire for more information or to set up a tour.
The Citadel, originally constructed in 1941, underwent massive renovations for residential and commercial space completed in September 2020. Listed on the National Register of Historic Places, this unique building is located in the historic Salvation Army Citadel. Some apartment features include:
• Hardwood floors
• Efficient LED lighting
• Large windows
Community Amenities:
• Conveniently located to downtown
• Free off-street parking
• Dog Park
• Shared grill and patio area
• Eco-friendly, non-smoking environment
• Secure building access
The Citadel, originally constructed in 1941, underwent massive renovations for residential and commercial space completed in September 2020. Listed on the National Register of Historic Places, this unique building is located in the historic Salvation Army Citadel. Some apartment features include:
• Hardwood floors
• Efficient LED lighting
• Large windows
Community Amenities:
• Conveniently located to downtown
• Free off-street parking
• Dog Park
• Shared grill and patio area
• Eco-friendly, non-smoking environment
• Secure building access
Contact us:























